4-к. квартира, 167.6 м²
Продажа квартир на любой вкус и бюджет
Главнаяarrow_forward_iosПРОДАЖАarrow_forward_iosКвартирыarrow_forward_iosОбъект №176505
Отличный вариант для любителей тихого центра!

В историческом районе Замоскворечье продаётся просторная четырёхкомнатная квартира в добротном кирпичном доме 1912-го года постройки с современным дизайнерским ремонтом. Перепланировка узаконена. Ремонт из дорогих и качественных материалов, недавно был обновлён.

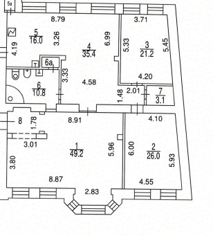
Комнаты большие с высокими потолками 3.4 метра. Окна двух спален выходят в тихий двор. Удобная и продуманная планировка: кухня 16 кв.м. с электрической плитой и всей необходимой бытовой техникой; столовая 35.4 кв.м (входит в жилую площадь); уютная комфортная гостиная 49.2 кв.м.; три подсобных помещения и один большой совмещённый санузел 10.8 кв.м.

Практически вся мебель и техника остаются покупателям. Есть второй выход из квартиры во двор.

Установлен шлагбаум, есть места для парковки.

Рядом Третьяковская галерея и много других мест, где приятно провести досуг. Также поблизости все необходимые магазины, школы, кафе, рестораны.

Прозрачная история квартиры - в собственности с 2011-го года у одного собственника. Никто не зарегистрирован, свободная продажа.
Ссылка на объявление: https://ansi.su/sale/saleapartments/176505
90 000 000
Ирина


Москва, Замоскворечье район, переулок 1-й Новокузнецкий, д 10, стр 1
Павелецкая0.5 кмТретьяковская0.7 кмПавелецкая0.7 км
redeemДанный объект можно приобрести в ипотеку

Информация об объекте

Количество комнат4-к квартира Этаж2 Площадь167.6 Жилая площадь131.8 Площадь кухни16 Площадь комнат49,2+26+21,2+35,4 Совмещенных санузлов1 РемонтДизайнерский

Информация о доме

Тип домаКирпичный Этажей в доме6 Лифты пассажирские1